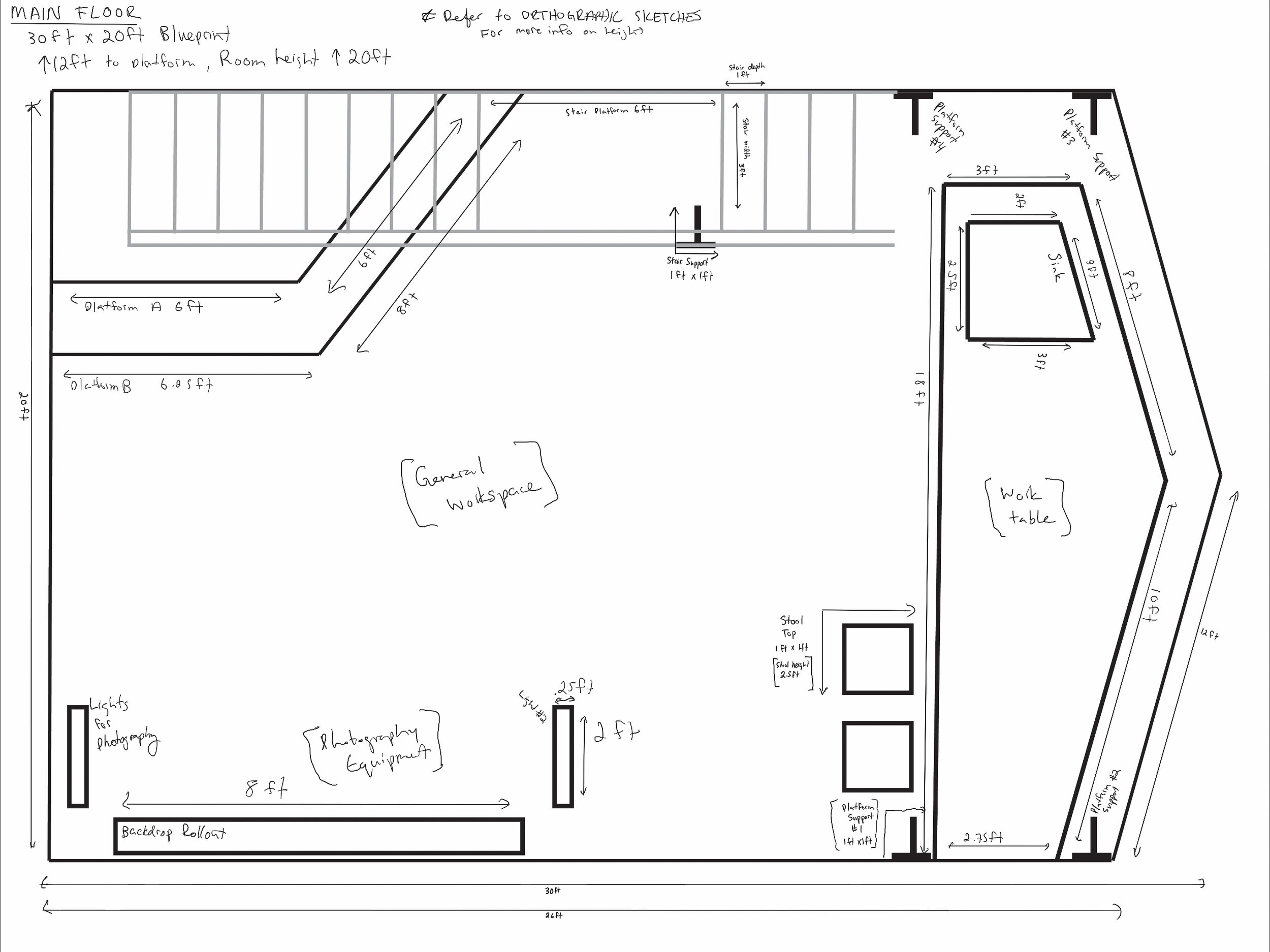
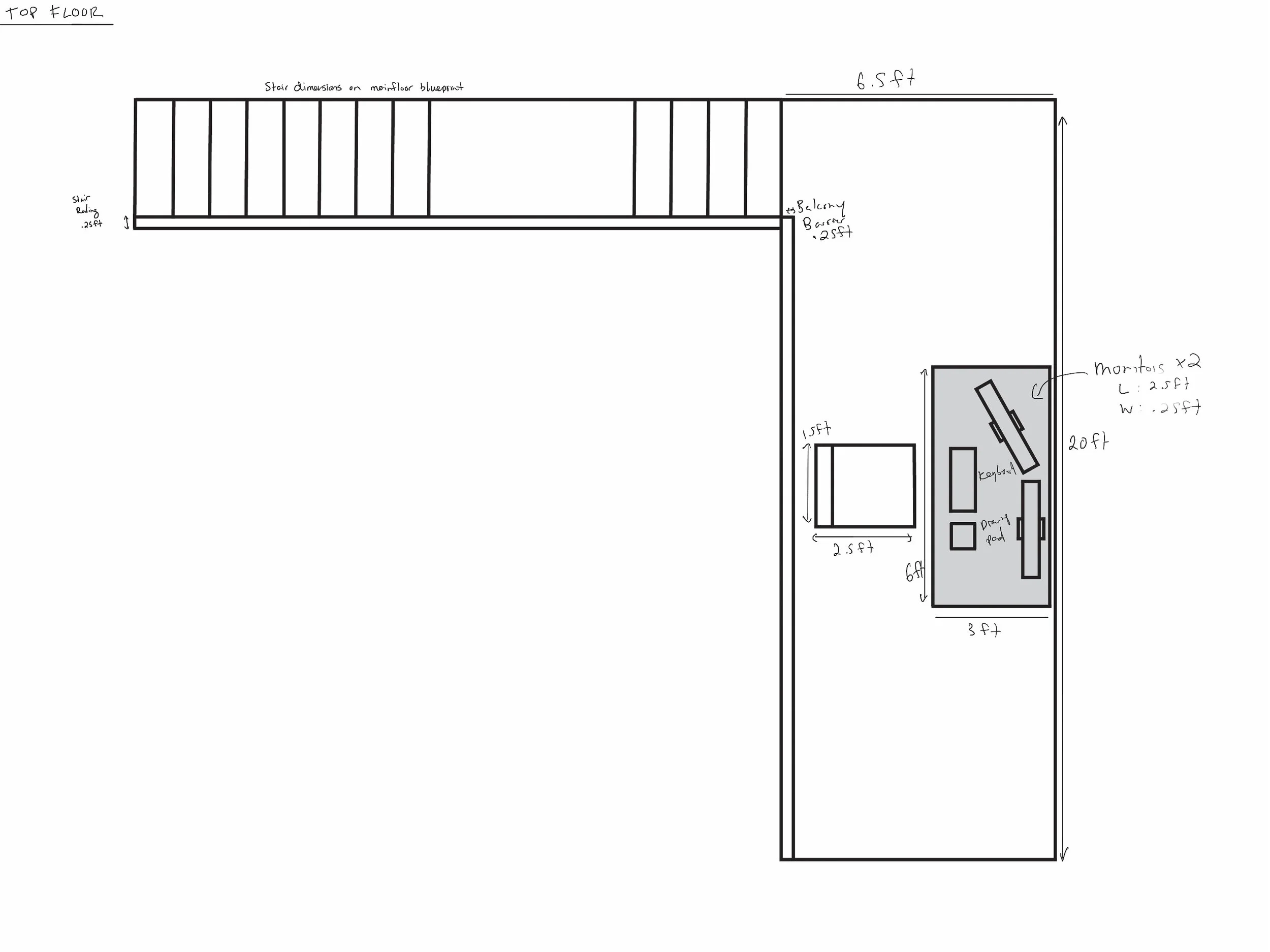
Studio Model

This is a 1/25 scale model of a studio space. This model was made using foam core, card stock, and tracing paper.